エステムプラザ名古屋UX

3,980万円

物件の特徴

【名古屋駅徒歩圏!築浅のデザイナーズマンション!】

最寄り駅2分!名古屋駅までも徒歩圏なので通勤、アクセスは抜群の立地になります!
大手法人のニーズも高いので投資物件にはピッタリです!

外観 | リブラブ
外観
エントランス | リブラブ
エントランス
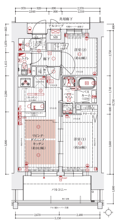
間取り | リブラブ
間取り
外観 | リブラブ
エントランス | リブラブ
間取り | リブラブ

物件概要

基本情報

  • 物件名

    エステムプラザ名古屋UX

  • 所在地

    愛知県 名古屋市中村区 亀島二丁目31番21号

  • 交通

    名古屋市営地下鉄東山線 亀島駅 徒歩6分
    JR東海道本線 名古屋駅 徒歩15分

  • 構造

    鉄筋コンクリート造

  • 階建

    地上15階建

  • 竣工年月

    2022年 4月

  • 総戸数

    42 戸

  • 施工

    株式会社ノバック

  • 物件種別

    中古マンション

  • 取引態様

    仲介

  • 所在階

    14 階

  • 間取り

    LDK

  • 専有面積

    44.51 ㎡

  • バルコニー方角

価格

  • 状態

    売出し中

  • 価格

    3,980 万円

  • 管理費・共益費

    8,320 円

  • 修繕積立金

    3,780 円

建物管理

  • 管理人

    巡回

  • 管理会社名

    株式会社エステム管理サービス

  • 管理形態

    全部委託

  • 管理組合

    あり

設備

  • 水道

    公営

  • ガス

    都市

  • 排水

    下水

  • 共有施設
    • 宅配ボックス
    • ゴミ出し24時間OK
  • 駐車場等
    • 駐輪場あり
    • バイク置き場あり
    • 駐車場あり

契約条件

  • 入居・引渡時期

    相談

  • 現況

    賃貸中 (賃料: 141,780 円)

設備

  • 洗濯機置き場

  • 冷暖房

    エアコン

  • キッチン

    ガス (三口コンロ)

  • キッチン:その他
    • カウンターキッチン
  • バス・トイレ
    • バス・トイレ別
    • シャワー付洗面化粧台
    • 洗面所独立
    • 浴室乾燥機
    • 温水洗浄便座
  • 収納
    • クローゼット
    • シューズボックス
  • セキュリティ
    • オートロック
    • 24時間セキュリティ
  • その他設備
    • 全室フローリング
    • 床暖房
    • 照明器具付
  • 事務所(SOHO)

    不可

  • ペット

    相談

周辺地図

お問い合わせ

0120-158-466

営業時間/10:00〜21:00 定休日/水曜日

物件を探す

お問い合わせ

「物件の詳細」や「他の物件情報」など、お気軽にご相談ください!

0120-158-466

営業時間/10:00〜21:00 定休日/水曜日

愛知県 名古屋市中村区

周辺物件情報

一覧ページへ戻る

外観 | リブラブ

エステムプラザ名古屋UX

  • 3,980万円

  • LDK / 44.51
  • 愛知県名古屋市中村区
  • 名古屋市営地下鉄東山線亀島 徒歩6

お問い合わせ

LINE公式アカウント | 株式会社リブラブ

エステムコンシェルジュ

ESTEM CONCIERGE

リブラブのLINE公式アカウントです。
売却のご相談をLINEで気軽に行っていただけます。
また、運用を行う上で知っておきたい情報も定期的に配信中です!

ご登録はこちら

メニュー