エステムプラザ心斎橋EASTⅣブランディア

4,280万円

物件の特徴

心斎橋エリア近く、松屋町駅徒歩2分。2012年築の区分マンション。
・地下鉄長堀鶴見緑地線「松屋町」駅まで徒歩2分の近さ
・2012年1月築で、築年数が比較的新しい物件です
・大阪市中央区エリアで、通勤や買い物に便利な立地です

外観 ※写真は新築時であり、現況と異なる場合は現況を優先します | リブラブ
外観 ※写真は新築時であり、現況と異なる場合は現況を優先します
外観 ※写真は新築時であり、現況と異なる場合は現況を優先します | リブラブ
外観 ※写真は新築時であり、現況と異なる場合は現況を優先します
外観 ※写真は新築時であり、現況と異なる場合は現況を優先します | リブラブ
外観 ※写真は新築時であり、現況と異なる場合は現況を優先します
但し、現状を優先します。 | リブラブ
但し、現状を優先します。
外観 ※写真は新築時であり、現況と異なる場合は現況を優先します | リブラブ
外観 ※写真は新築時であり、現況と異なる場合は現況を優先します | リブラブ
外観 ※写真は新築時であり、現況と異なる場合は現況を優先します | リブラブ
但し、現状を優先します。 | リブラブ

物件概要

基本情報

  • 物件名

    エステムプラザ心斎橋EASTⅣブランディア

  • 所在地

    大阪府 大阪市中央区 松屋町5-3

  • 交通

    大阪メトロ長堀鶴見緑地線 松屋町駅 徒歩2分

  • 構造

    鉄筋コンクリート造

  • 階建

    地上14階建

  • 竣工年月

    2012年 1月

  • 総戸数

    116 戸

  • 施工

    株式会社森本組 大阪支店

  • 物件種別

    中古マンション

  • 取引態様

    一般

  • 所在階

    8 階

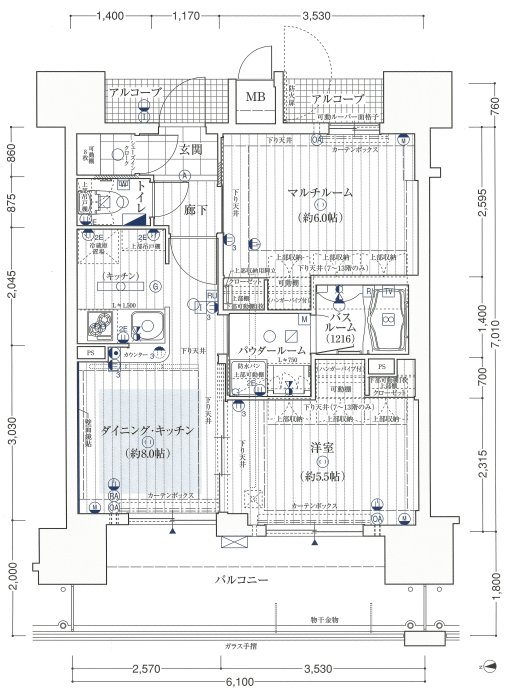
  • 間取り

    DK

  • 専有面積

    42.85 ㎡

  • バルコニー方角

    西

価格

  • 状態

    売出し中

  • 価格

    4,280 万円

  • 管理費・共益費

    8,140 円

  • 修繕積立金

    12,430 円

建物管理

  • 管理人

    巡回

  • 管理会社名

    株式会社エステム管理サービス

  • 管理形態

    全部委託

  • 管理組合

    指定なし

設備

  • 水道

    指定なし

  • ガス

    都市

  • 排水

    下水

  • 共有施設
    • 宅配ボックス

契約条件

  • 入居・引渡時期

    相談

  • 現況

    空家

設備

  • 洗濯機置き場

  • キッチン

    ガス (二口コンロ)

  • キッチン:その他
    • システムキッチン
    • カウンターキッチン
  • バス・トイレ
    • バス・トイレ別
    • 追焚機能
    • 浴室TV
    • 浴室乾燥機
    • 浴室暖房
    • 温水洗浄便座
  • 収納
    • クローゼット
    • シューズボックス
  • セキュリティ
    • TVドアホン
    • オートロック
  • その他設備
    • 給湯
    • フローリング
    • 照明器具付
  • 事務所(SOHO)

    不可

  • ペット

周辺地図

お問い合わせ

0120-158-466

営業時間/10:00〜21:00 定休日/水曜日

物件を探す

お問い合わせ

「物件の詳細」や「他の物件情報」など、お気軽にご相談ください!

0120-158-466

営業時間/10:00〜21:00 定休日/水曜日

大阪府 大阪市中央区

周辺物件情報

一覧ページへ戻る

外観 ※写真は新築時であり、現況と異なる場合は現況を優先します | リブラブ

エステムプラザ心斎橋EASTⅣブランディア

  • 4,280万円

  • DK / 42.85
  • 大阪府大阪市中央区
  • 大阪メトロ長堀鶴見緑地線松屋町 徒歩2

外観 ※写真は新築時であり、現況と異なる場合は現況を優先します | リブラブ

エステムプラザ大手前エヴァース

  • 4,380万円

  • DK / 42.83
  • 大阪府大阪市中央区
  • 大阪メトロ谷町線谷町四丁目 徒歩4

外観 ※写真は新築時であり、現況と異なる場合は現況を優先します | リブラブ

エステムプラザ大手前エヴァース

  • 4,380万円

  • DK / 42.83
  • 大阪府大阪市中央区
  • 大阪メトロ谷町線谷町四丁目 徒歩4

外観 | リブラブ

KAISEI大手前

  • 2,180万円

  • LDK / 45.15
  • 大阪府大阪市中央区
  • 大阪メトロ谷町線天満橋 徒歩6

外観 | リブラブ

エステムコート堺筋本町

  • 3,050万円

  • DK / 31.12
  • 大阪府大阪市中央区
  • 大阪メトロ中央線堺筋本町 徒歩4

外観 | リブラブ

シエリアタワーなんば

  • 6,680万円

  • LDK / 67.24
  • 大阪府大阪市中央区
  • 大阪メトロ堺筋線日本橋 徒歩8

外観 | リブラブ

エステムコート堺筋本町

  • 3,000万円

  • DK / 31.12
  • 大阪府大阪市中央区
  • 大阪メトロ中央線堺筋本町 徒歩4

お問い合わせ

LINE公式アカウント | 株式会社リブラブ

エステムコンシェルジュ

ESTEM CONCIERGE

リブラブのLINE公式アカウントです。
売却のご相談をLINEで気軽に行っていただけます。
また、運用を行う上で知っておきたい情報も定期的に配信中です!

ご登録はこちら

メニュー